Jaak van Wijck is de sloten specialist van Breda.
We hebben heel veel sloten in afwijkende maatvoering uit voorraad leverbaar.
Ook voor een betrouwbare slotenmaker kunt u bij ons tijdens openingstijden terecht.
Hier vind u meer informatie betreffende onze slotenservice.
Smal sloten:
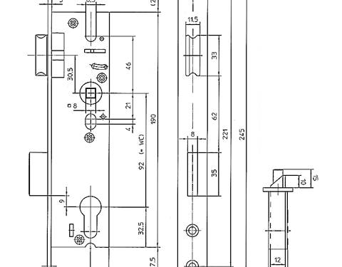
Sloten met een smalle sluitkast wordt veelal gebruikt in poorten, deuren van staal en aluminium.
D (op tekening onderaan) – maat = 25 mm sloten zijn links en rechts leverbaar.
Hart maat 72 mm is de afstand tussen het midden van het krukgat en en het midden van het cilindergat, het ronde gedeelte waar de sleutel in gaat.
Poortslot, meubelslotje en andere ijzerwaren of gereedschap kopen?
Jaak van Wijck is een ijzerwaren en gereedschap winkel in Breda. Groots assortiment en vakmanschap sinds 1938! Ruim assortiment gereedschappen, bouten en moeren uit voorraad leverbaar. Ook diverse materialen voor de hobby en modelbouw. Bestel direct online óf bezoek onze winkel in Breda.








Beoordelingen
Er zijn nog geen beoordelingen.